Weiss Architecture Studio

Quis autem vel eum iure reprehenderit qui in ea voluptate velit esse quam nihil molestiae lorem.

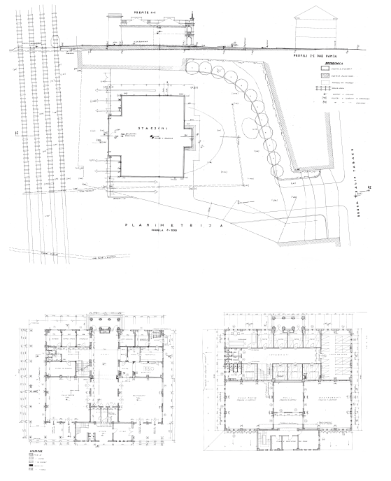
Stacione

The first train station in Durrës was positioned in the south of the city, near the port. This is also the first passenger station in the country, which was realized after the completion of works for the segment Durrës - Peqin (1947). Actually,
the building was pre-designed for a power station and the 1951 project proposed a functional adaptation of it temporarily adapting it to the new function.

Download the book

Date:
Tags:
en_US